網站首頁
關於我們
企業概述
新聞中心
榮譽證書
聯係我們
規劃理念
專業篇
安全篇
智能篇
舒適篇
規劃谘詢&設計
規劃谘詢重要性
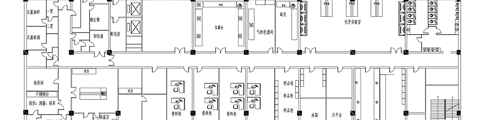
實驗建築模塊化設計
實驗功能室模塊化設計
各行業實驗室規劃設計
實驗室係統工程設計
實驗室設計標準
實驗室智能方案
基礎智能方案
可擴展智能方案
高端智能台櫃定製
通風櫃係列
實驗台係列
智能安全櫃係列
經典案例
公司首頁
了解智慧實驗室一體化建設
UNDERSTANDING THE INTEGRATED CONSTRUCTION OF INTELLIGENT LABORATORY
共建美麗鄉村
共享美好生活
掃描二維碼
關注人峰公眾號
Website
網站首頁
關於我們
規劃理念
規劃谘詢&設計
實驗室智能方案
高端智能台櫃定製
經典案例
公司首頁
廣東人峰實業有限公司
地址:廣東省廣州市黃埔區光譜中路11號雲升科學園B2棟301單元
座機:
郵箱:
網址:http://hmjalln.cn
首頁
>>
規劃谘詢&設計
>> 藥品檢驗機構實驗室